OA_Mehrgenerationenwohnen
OTTERBECK ARCHITEKTEN

MEHRGENERATIONENWOHNEN


OTTERBECK ARCHITEKTEN
08.2013
Freie Mitarbeit
Während meiner Tatigkeit bei Otterbeck Archi- tekten habe ich unter anderem dieses Mehr- generationenwohnhaus entworfen. Die Kon- zeption sieht Folgendes vor: Es soll eine Wohngemeinschaft entstehen, in die Jung und Alt einerseits auf freiwilliger Basis ihre Fähig- keiten einbringen, andererseits sollen Singles, Paare, Familien mit Kindern, ihren abgeschlos- senen, unterschiedlich großen Wohnraum haben, in Eigentum oder zur Miete. So soll gewährleistet sein, dass pflegebedürftige Mit- menschen so lang wie möglich in ihrer gewohnten Umgebung bleiben können. Das Grundstück befindet sich in ruhiger Lage, direkt am Waldrand und hat eine optimale verkehrs- technische Anbindung. Im Sockelgeschoss des Entwurfs befinden sich öffentliche Funktionen wie z.B. Ärzte oder Bewegungsräume und die Tiefgarage. Diese werden durch einen Tiefhof belichtet, welcher sich zur Straße hin öffnet. Das Gebäude selbst besteht aus 12 Wohn- einheiten, einem Büro, einer Gäste Wohnung und einem Wintergarten für gemeinschaftliche Aktivitäten. Erschlossen wird das Gebäude im Erdgeschoss durch einen breiten Gang welcher auch als Ausstellungsfläche dienen soll.
OA_Mehrgenerationenwohnen OA_Mehrgenerationenwohnen OA_Mehrgenerationenwohnen OA_Mehrgenerationenwohnen OA_Mehrgenerationenwohnen
Leibniz Salon
Leibniz_Salon

LEIBNIZ SALON


Bauhaus Universität Weimar
04.2013
Master Thesis
Betreuung: Prof. Schmitz
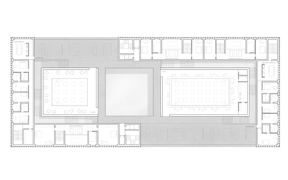
Der Leibniz Salon ist ein universelles Wissens- zentrum für Veranstaltung und Forschung, mit Standort im geografischen Zentrum Hannovers. Das Grundstück liegt auf der Grenze zweier Stadt- teile, in einem Grünzug, zwischen Leine und Stadtring. Die beiden Stadtteile sind sehr stark voneinander getrennt und sollen durch das Gebäude wieder stärker miteinander ver- bunden werden. Dieser Gedanke ist Ausgangs- punkt meines Entwurfs. Die Analysen haben gezeigt, dass aus jedem Stadtteil jeweils eine Blick- / Bewegungsachse direkt auf das Grund- stück zuläuft. Das geplante Gebäude nimmt diese Achsen auf und verknüpft sie durch einen zentralen Platz (Foyer) miteinander. Die Salons bilden zusammen mit dem Foyer das Herzen des Entwurfs und bieten Raum für unterschiedlichste Veranstaltungen. Ein weiter- es wichtiges Element meines Entwurfs sind die Ausstellungsflächen. Sie sind mit der Haupt- erschließung zusammengelegt und bilden einen Rundgang über alle Ebenen des Ge- bäudes, Auftakt und Endpunkt ist das Foyer. Alle weiteren Funktionen sind in einem Ring um die Salons angeordnet und können seperat erschlossen werden.
Leibniz Salon Leibniz Salon Leibniz Salon Leibniz Salon Leibniz Salon Leibniz Salon Leibniz Salon Leibniz Salon Leibniz Salon Leibniz Salon Leibniz Salon Leibniz Salon Leibniz Salon Leibniz Salon Leibniz Salon Leibniz Salon Leibniz Salon Leibniz Salon Leibniz Salon Leibniz Salon Leibniz Salon Leibniz Salon Leibniz Salon Leibniz Salon Leibniz Salon Leibniz Salon
Waldhofsiedlung
Waldhofsiedlung

WALDHOFSIEDLUNG


VITAMINOFFICE ARCHITEKTEN
09.2012
Team: H. Maier, C. WengemuthD. Preußker
Das Entwurfssgebiet befindet sich in Weimar, am exponierten Südhang des Ettersberges. Die langjährige militärische Nutzung des Gebiets ist bis heute ablesbar. Davon zeugen die vor- handenen Kasernengebäuden und eine Viel- zahl künstlich angelegter Einzelplateaus, die durch die natürliche Sukzession, einen Wald ähnlichen Charakter erhalten haben. Dieser ist gedanklicher Ausgangspunkt unseres Entwurfs. Die bereits vorhandenen begrünten Plateaus definieren - analog kleiner Waldlichtungen - die künftigen Baufelder. Sie ermöglichen eine klare Abgrenzung unterschiedlicher Gestaltbereiche und die Entwicklung differenzierter Bautypo- logien und Baudichten (vom freistehenden eingeschossigen Bungalow bis zum vierge- schossigen "Turmhaus"). Zwischen den einzeln- en Baugruppen sind lediglich Fuß- und Rad- wege vorgesehen, die sich auch an das überörtliche Wander- und Radwegenetz an- schließen. So ensteht eine Wohnsiedlung mit fast "luxuriös" anmutendem Freiraumanteil. Von der relativ "hochverdichteten" Altstadt Weimar, zu einer "hochdurchgrünten" Stadt- randsiedlung, der neuen Waldhofsiedlung Weimar.
Waldhofsiedlung Waldhofsiedlung Waldhofsiedlung Waldhofsiedlung
Am Brühl
Erfurt

AM BRÜHL


VITAMINOFFICE ARCHITEKTEN
08.2012
Team: T. HerrC. WengemuthD. Preußker
Das Entwurfsgebiet befindet sich in Erfurt, im südlichen Brühl. Die Gestaltsprache des Ent- wurfs bedient sich vorhandener Qualitäten der Brühler Vorstadt, der Festung Petersberg und den umliegenden Parkanlagen. Sie werden neu interpretiert und weiterentwickelt. Eine Adapt- ion der ehemaligen Festungsmauern wird zu einer Spange mit zwei markanten Endpunkten. Diese räumliche Zäsur gliedert und organisiert das Quartier. Die beiden Hochhäuser mit den jeweiligen urbanen Stadtplätzen umspannen das neue Wohngebiet mit öffentlichen Nutz- ungen. Dort finden sich Räume für Handel, Gewerbe, Praxis und auch Kultur. Sie dienen als Orientierungs- und Identifikationspunkte. Aus dem vorhandenen Bautyp der Benaryvilla, eine große, solitäre Stadtvilla im Garten, wird ein neuer Stadthaustyp entwickelt. Er definiert sich als ein mehrgeschossiges, urbanes Ge- bäude, welches großzügig von einer Parkland- schaft "umspült" wird. Die Parklandschaft gliedert sich in befestigte Erschließungsflächen und Auenwiesen. Dieses starke grüne Bild leitet sich aus der gegebenen Situation am Bergstrom und als Fuge zwischen EGA und Petersberg ab.
Am Brühl Am Brühl Am Brühl Am Brühl Am Brühl Am Brühl Am Brühl Am Brühl
Stachus Muenchen
Stachus_Muenchen

STACHUS MÜNCHEN


Bauhaus Universität Weimar
03.2012
Team: Luis Gutierrez, Tobias Herr
Betreuung: Prof. Schmitz
"Im Herzen der Stadt, Stachus München. Eine neue Identität für das Areal zwischen Haupt- bahnhof und Stachus". Das war das Thema des 8. Xella Studentenwettbewerb 2011/12. Enge und Weite ist für die Münchner Fußgänger- zone ein wichtiges Merkmal. Sie weitet sich mehrmals und schafft somit Plätze, die zum Verweilen und Ausruhen einladen. Jeder dieser Plätze prägt die Identität seiner Umgebung. Doch fehlt München ein Auftakt um an- kommende Besucher am Bahnhof Willkommen zu heißen. Hier setzten wir an und bilden mit unserem Entwurf, dem historischen Karstadt und dem Justizgebäude einen prägnanten ur- banen Platz welcher die Besucher in München Willkommen heißt. Identität bilden auch die Türme der Marienkirche, des Rathauses usw., die als Orientierungspunkte von vielen Orten in der Stadt zu sehen sind. Mit dem Hotelturm schaffen wir hier einen neuen Orientierungs- punkt. Vom Bahnhof stärkt er den Weg Richt- ung Innenstadt und vom Karlstor lenkt er Richtung Bahnhof. Die innere Erschließung des Entwurfs nimmt das Thema der Weite und Enge wieder auf und verwebt das Gebäude mit der Stadt.
Stachus München Stachus München Stachus München Stachus München Stachus München Stachus München Stachus München Stachus München Stachus München Stachus München Stachus München Stachus München Stachus München Stachus München Stachus München Stachus München Stachus München Stachus München Stachus München Stachus München Stachus München Stachus München Stachus München Stachus München Stachus München
Documenta 13
Documenta_13

DOCUMENTA 13


Bauhaus Universität Weimar
02.2011
Team: Luis Gutierrez, Paul R. Schägner
Betreuung: Prof. König, Geddert, Schneider
In der Kasseler City sollte für die Documenta ein temporäres center of information and com- munication geplant werden, ein Raumhybrid, der während der 100-tägigen Veranstaltung verschiedene Funktionen in sich beherbergen sollte. Neben unterschiedlichen Bereichen wie z.B. Vortragsraum, Veranstaltungsbühne, Pres- sezentrum, Shop bzw. Buchladen, Gastronomie und Dokumentationsbereich sind ebenso not- wendige Nebenfunktionen einzuplanen.
Das Ziel unseres Entwurf ist es, einen "grenzen- losen" Raum für die Besucher der Documenta zu schaffen. Die Architektur soll anziehend und einladend sein, kaum abgrenzende Schwellen generieren und Gäste unmittelbar bedienen. Viele extrovertierte Funktionen und das generierte Treiben sollen nur gegen die un- mittelbaren Witterungsbedingungen geschützt werden aber trotzdem im Freien passieren. Nur wenige introvertierte und dienende Funktion- en sollen in geschlossenen Räumen unterge- bracht werden.
Documenta 13 Documenta 13 Documenta 13 Documenta 13 Documenta 13 Documenta 13 Documenta 13 Documenta 13 Documenta 13 Documenta 13 Documenta 13 Documenta 13 Documenta 13 Documenta 13 Documenta 13 Documenta 13 Documenta 13
Interveawing
Interweaving

INTERWEAVING


Bauhaus Universität Weimar
02.2012
Team: F. Riegraf, L. Gutierrez, P. Schägner
Betreuung: Prof. König, DI Geddert
Ausgangspunkt unserer Überlegungen ist es, einen interreligiösen Andachtsraum ohne kon- fessionelle Bindung zu entwerfen. Dieser soll eine Interaktion mit der Umgebung gestatten aber zu gleich auch eine gewisse Privatsphäre wahren. Um eine Gleichgewichtung der unter- schiedlichen Religionen zu erreichen, haben wir die Symbole, der in unserem Kulturkreis vor- herrschenden Offenbarungsreligionen ausge- wählt und daraus die Elemente der Außen- wand generiert. Diese wurden durch Verviel- fältigung, Rotation sowie Verschiebung ver- fremdet. Die so entstandenen abstrakten Symbole wurden dann miteinander ver- flochten. Das "Basiselement", ist durch einfach- es Drehen schon zu einer Wand kombinierbar und bildet die Grundlage für das dreidim- ensionale Geflecht der Wand. Um jedoch verschiedene Grade der Offenheit erzeugen zu können, wird das "Basiselement" durch gewisse Gesetz- mäßigkeiten verformt bzw. moduliert.
Interveawing Interveawing Interveawing Interveawing Interveawing Interveawing Interveawing Interveawing Interveawing Interveawing
Gymnasium
Gymnasium

GYMNASIUM KONSTANZ


HTWG-Konstanz
02.2010
Bachelor Thesis
Betreuung: Prof. Ackermann
Aufgabe war es im Konstanzer Stadtteil Peters- hausen ein 2-zügiges Gymnasium mit 3-fach Sporthalle und Freisportflächen zu planen. Der auf dem Grundstück bestehende Altbau, die frühere "Französischen Schule", sollte dabei erhalten und in das Entwurfskonzept integriert werden. Ausgangspunkt für den Entwurf ist die Erhaltung und Integrierung des Altbaus. Der Altbau wird bis auf das Skelett entkernt, um ein Rasterfeld erweitert, und durch zwei parallele Riegel im Norden und Süden ergänzt. Voll- verglaste Lichthöfe verbinden den Altbau mit den Neubauten. In diesem kompakten Bau- körper befindet sich die Schule. Im Süden der Schule wird ein weiterer Neubau geplant, der sich aus einem halböffentlichen Bereich, und der Sporthalle zusammensetzt. Hier wird das Element des Lichthofes wieder aufgegriffen und macht die beiden Bereiche des Gebäudes klar ablesbar und verbindet sie gleicher- maßen. Im Norden wird der Entwurf durch einen weiteren Riegel ergänzt, der das Ein- gangstor zur Schule markiert und zusätzlich die Bushaltestelle, Fahradstellplätze und einen Kiosk beinhaltet. Zwischen den Gebäuden entstehen Pausenhöfe.
Gymnasium Gymnasium Gymnasium Gymnasium Gymnasium Gymnasium Gymnasium Gymnasium Gymnasium Gymnasium Gymnasium Gymnasium
Betonmöbel
Betonmoebel

BETONMÖBEL


HTWG-Konstanz
03.2008
Betreuung: Prof. Gautschi
Im Rahmen meines Architekturstudiums an der HTWG-Konstanz habe ich an einem Beton- workshop teilgenommen. Aufgabe war es ein Möbelstück aus Beton zu entwerfen und um- zusetzten. Stattgefunden hat der Workshop in der Freiburger Gewerbe Akademie, dort haben wir mithilfe der Auszubildenden unsere Ent- würfe umgesetzten. Wir haben in Teams gear- beitet, so konnten wir innerhalb von 5 Tagen die Schalung bauen, das Möbelstück gießen, ausschalen und direkt das fertige Resultat begutachten. Mein Entwurf ist ein kleiner multifunktionaler Tisch. Er besteht aus einer L- und einer U-Form, die in unterschiedlichen Varianten zusammengesteckt werden können. Gehalten werden sie mithilfe von Stahlstiften.
Betonmöbel Betonmöbel Betonmöbel
Vita

KONTAKT


Manuel Nagel
Oberer Haldenweg 5
73760 Ostfildern

mail@manuelnagel.com
www.manuelnagel.com

Alle Angaben gemäß § 5 TMG.

AUSBILDUNG

1991 - 2004
Freie Waldorfschule Elmshorn
Allgemeine Hochschulreife

2006 - 2010
Studium an der HTWG-Konstanz
Bachelor of Arts, Architektur

2010 - 2013
Studium an der Bauhaus-Universität Weimar
Master of Science, Architektur



BERUFSERFAHRUNG

2005 & 2008 (3 Monate)
Praktika im Architekturbüro Seyfert, Genf

2008 - 2009 (6 Monate)
Praktikum bei Schreiner Architekten, Stuttgart

2012 & 2014 (6 Monate)
Freie Mitarbeit bei Vitaminoffice Architekten, Erfurt

2013 - 2014 (7 Monate)
Freie Mitarbeit bei Otterbeck Architekten, Stuttgart



COMPUTERKENTNISSE

Archicad, Vektorworks, AutoCAD, Rhino, V-Ray, Grasshopper, Cinema 4D, Photoshop, Illustrator, Indesign, Office, Processing, Depthmap, HTML/CSS.

AUSZEICHNUNGEN

2010
Architekturpreis der HTWG-Konstanz für die beste
Bachelor Thesis im WS 09/10.

2012
2. Preis, 8. Xella Studentenwettbewerb 2011/12
"Im Herzen der Stadt. Stachus München".


Bild